Transforming a Peters Township Ranch into a Dream Home
- Project Portfolio
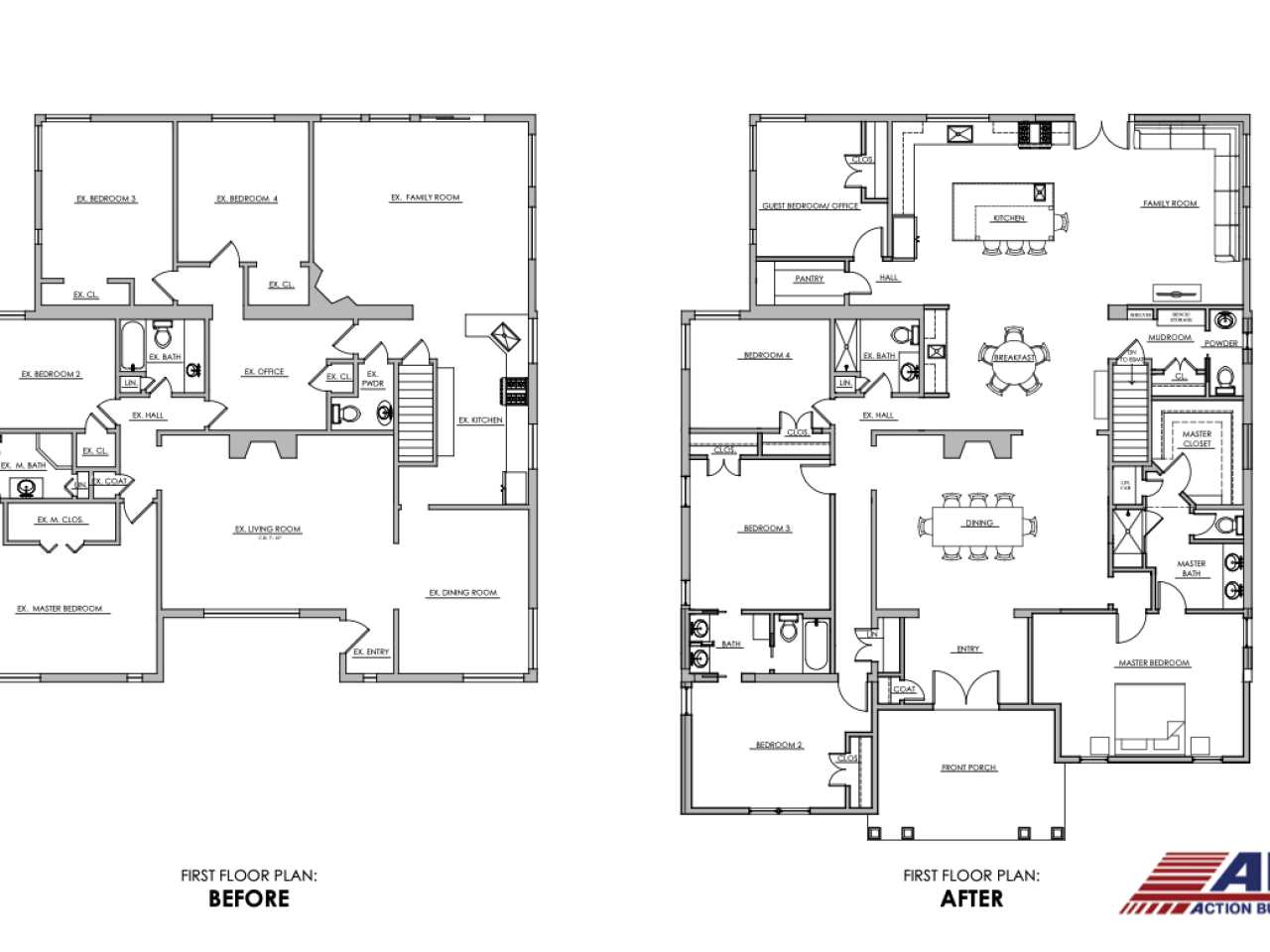
Project Scope
In the quiet suburbs of Peters Township, PA, a homeowners small ranch-style home, while charming, was burdened with a challenging floor plan. Despite its enviable backyard featuring a sport court, pool, and covered patio with a built-in grill, the interior of the house told a different story. Rooms were disconnected, forcing family members to navigate through one space to reach another, with no open flow or cohesion.
The homeowners—a family of five—dreamed of a home that not only embraced modern design but also functioned seamlessly for their needs. They envisioned a master suite, individual spaces for their three children, an office/craft room, and an open-concept living area that would allow their family to connect without barriers. After numerous consultations with other contractors, they turned to Action Builders where they felt heard and inspired.
Listening First is the Foundation of Exceptional Design
From the first consultation, our team focused on listening. We walked through their floor plan, room by room, and took the time to understand their lifestyle and priorities. This family needed more than just a home renovation; they needed a thoughtful transformation. We proposed a design-build solution that addressed every aspect of their wish list:
- A small addition at the front of the home to create space for a luxurious master suite.
- Three bedrooms and three bathrooms—including a shared Jack-and-Jill bathroom for the daughters—on the opposite side of the house.
- A fully open-concept living, dining, and kitchen area that brought the family together.
- An office/craft space tailored to their needs.
Creating the Ideal Design-Build Blueprint for Smooth Renovation
One of the key challenges was the existing structure—a previous addition had left the home feeling disjointed and inefficient. Action Builders’ design-build process prioritized careful planning and organization. By resolving potential issues during the design phase, we ensured a smooth construction process. This foresight allowed us to complete the entire project—a significant addition and whole-home remodel—in just over three months.
Enjoying a Beautifully Functional Home with Expert Renovations
The result was nothing short of remarkable. The once-odd floor plan gave way to a bright, open, and functional home tailored perfectly to the family’s needs. Each child now has their own space, and the master suite offers a private retreat. The open-concept design fosters connection and makes entertaining a breeze. The homeowners were amazed by the speed and quality of the transformation, describing the experience as seamless and stress-free.
Why Homeowners Across the Greater Pittsburgh Area Choose Action Builders
This project exemplifies why homeowners in the Pittsburgh area trust Action Builders for their most ambitious renovations. We’re known for tackling structurally complex projects and delivering results that exceed expectations. Our design-build approach ensures that every project is well-organized from start to finish, with clear communication and meticulous planning. With over 30 years of experience, we’re committed to making the renovation process easy and enjoyable for our clients.
For this Pennsylvania family, we didn’t just renovate their house—we gave them the home they’d always dreamed of. If you’re ready to turn your vision into reality, let’s start your project today.
Need more information about home additions and interior remodeling before pursuing a project?
See our Addition and Remodeling Guides to learn:
- Why hiring a design-builder is in your best interest
- Top projects that solve the biggest problems for Pittsburgh homes
- Budget and planning tips to get the best outcome for whole-home renovations or additions











